本文へスキップ
出水市の不動産のことなら(株)正行不動産へ
(株)正行不動産
電話でのお問い合わせは
0996-67-4422
〒899-0126 鹿児島県 出水市 六月田町415
物件一覧
>
西出水地区
出水総合医療センター近く〜明神町売地〜
new
detail
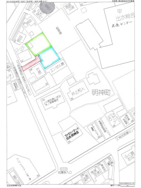
鹿児島県出水市明神町
物件概要
価格 売地
5,367,600円
…@
価格
4,600,000円
…A
住所
出水市明神町462…@ 466…A
駐車場
取引形態
仲介
引渡/入居時期
現況
土地面積 @
394.32u(119.28坪)
土地面積 A
304.02u(91.96坪)
周辺環境
米ノ津小学校 米ノ津中学校
設置・条件
物件番号
k179
自社物
先物
令和7年12月2日掲載
物件写真
マップ
このページの先頭へ
ナビゲーション
top page
トップページ
company
会社案内
real estate
賃貸物件
real estate
売家物件
real estate
売地物件
contact us
お問い合わせ
access
アクセス
バナースペース
賃貸物件一覧
売家物件一覧
売地物件一覧
出水市役所HP
出水市ゴミ出し日
JR九州出水駅時刻表
肥薩おれんじ鉄道時刻表
南国交通